Signed in as:
filler@godaddy.com
Signed in as:
filler@godaddy.com
Construction Starting soon. Visit this page often to keep up with the progress. Currently this home is Available, but they don't last long. call us or click the link below to Buy or Build your home.
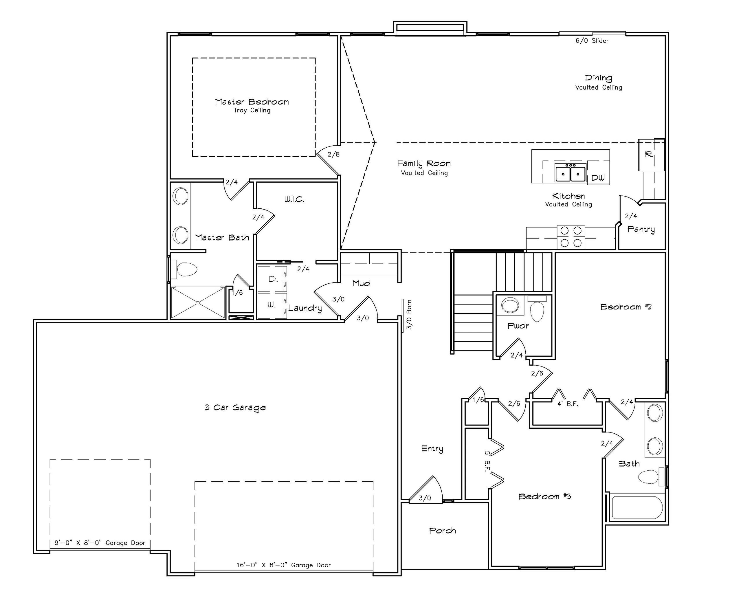
This is one of our entry level energy Efficient Model utilizing Envirofoam Closed Cell Spray Foam Insulation, High Efficiency HVAC System. EV Charger ready. This is a ranch home with 2 car garage, Full unfinished basement and the home is built with Energy efficiency and the highest quality Building Products in mind. Call our office and Speak to the Builder an for Legacy construction at 217-498-1132
Listed at $399,900 - with finished basement and 3 car garage at $459,000
Legacy Construction sells our home plans, design and lot. Please note that the images are AI generated and are only ideas of what the home could look like. Legacy can make the home look very similar to the picture if you desire. please note that there are base allowances for the siding, stone windows roofing materials etc.
If you go over on the allowances, there will be change orders signed at that time.
The allowances we provide are enough for Vinal siding, a min of 20% of the facade with brick and or stone.
the standard roof material is shingles. Legacy does build with Zip wall and Advantek flooring along with envirofoam spray foam insulation in the exterior walls.

This home has 1695 sq feet upstairs with a full unfinished basement. a 3rd car garage is optional at an additional cost of $9,800 plus a garage door of your choice, Add a Man door at $300.
please call 217-498-3211 to schedule a meeting on this home.

If you were to choose this home with a 3-car garage and a full finishes basement of approx. 1200 sq feet leaving 495 sq feet for unfinished area for your furnace and water heater. total cost for this home would be. $459,000 with base finishes. Totaling 2895 finished sq feet.


Copyright © 2025 Dan Wallace - All Rights Reserved. * Contractor
We use cookies to analyze website traffic and optimize your website experience. By accepting our use of cookies, your data will be aggregated with all other user data.