Signed in as:
filler@godaddy.com
Signed in as:
filler@godaddy.com
Construction Starting Mid 2024
Lake side duplexes at harbor point
2 sold, 4 available for custom build
329 - 331 Last of the lake lots
312 - 314 interior lots
Visit this page often to keep up with the progress.
Call us or click the link below to Buy or Build your home.
much more info is available at the office in Rochester.
Please call to set up a meeting for allowances and choices made to date on finishes.
This is one of our Mid-level energy Efficient Model utilizing Envirofoam Closed Cell Spray Foam Insulation, High Efficiency HVAC System. EV
Charger for your Car already installed in all these new construction homes.
The home is built with Energy efficiency and the highest quality Buidling Products in mind.
Call our office and Speak to the Builder and Managing Broker for Legacy Real Estate at 217-498-1132

Currently scheduled for construction. 2024
Price start at $750,000
Final price will depend on finishes chosen.
Call our office for Allowances!




Harbor point has 2 Allowable plans.
The 2-story design and the ranch plan
This is the elevation of the 2 story design front and rear

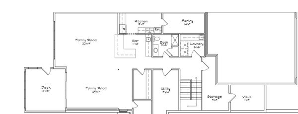
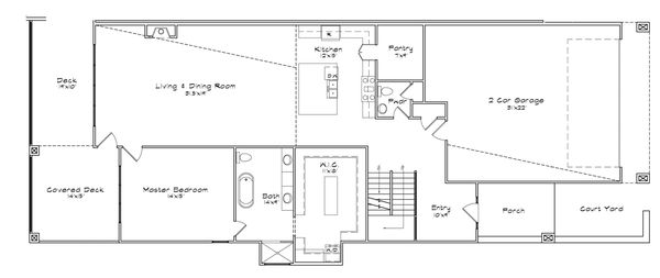
1st floor layout

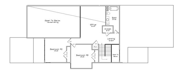
2nd floor layout

Walkout basement layout
1/5

stacked washer and dryer / w sink and cabinets

shelves, built in cabinets and island

his and her sinks - separate sides of room,
this tile in shower
Copyright © 2025 Dan Wallace - All Rights Reserved. * Contractor
We use cookies to analyze website traffic and optimize your website experience. By accepting our use of cookies, your data will be aggregated with all other user data.